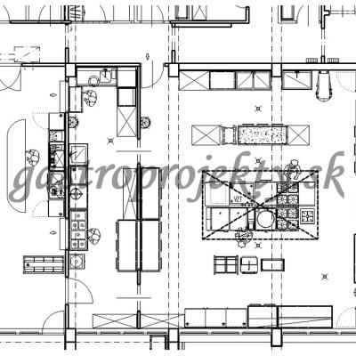
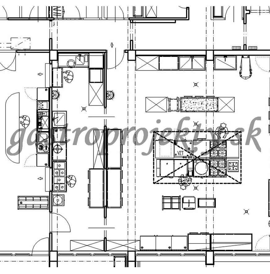
pre optimálny dispozičný návrh je potrebné poznať doleuvedené skutočnosti, ktoré plne definujú gastro prevádzku. Naše 25 ročné skúsenosti v oblasti navrhovania gastro prevádzok, profesionálne ovládanie CAD v 2D aj 3D nám umožni navrhnúť všetko tak, aby sme maximálne efektívne využili priestor (sklady, príprava jedál, varná časť, výdaj jedál, umývanie riadu)
Definovanie typu gastro prevádzky
- Reštaurácia
- Kaviareň
- Bar
- Fast food
- Pekáreň
- Hotelová kuchyňa
- Cateringová prevádzka
,,Perfektný dispozičný návrh môže pokaziť neskúsený dodávateľ a naopak. Ani skúsený gastro dodávateľ nezachráni nekvalitný dispozičný návrh."
